הפרויקט
המיקום
דירות להשכרה
תוכניות דירה
היזמים והמבצעים
צור קשר
הפרויקט
המיקום
דירות להשכרה
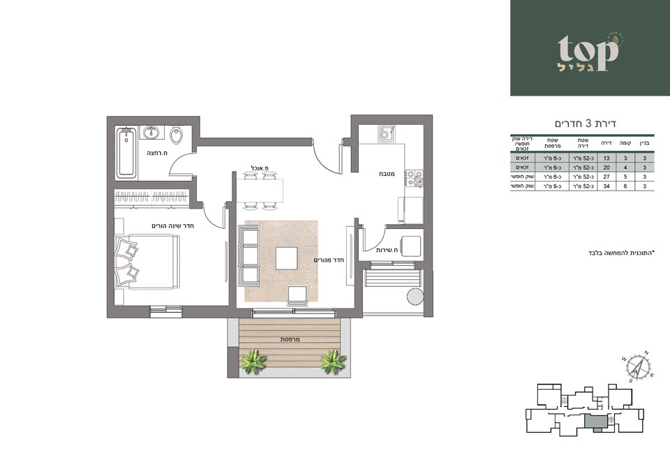
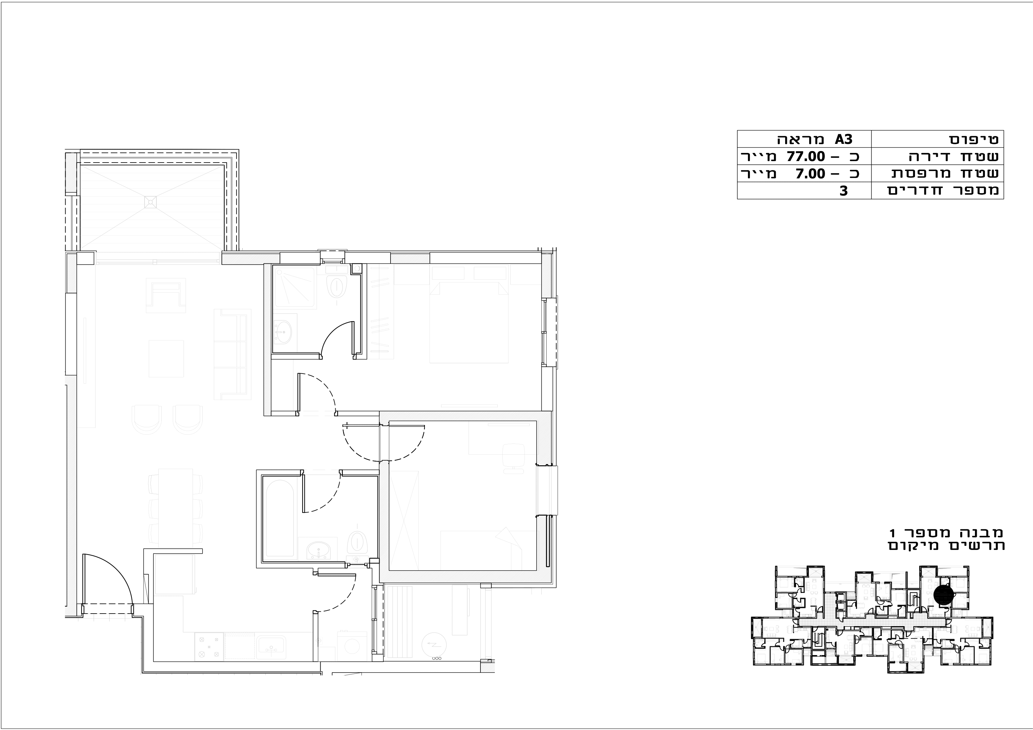
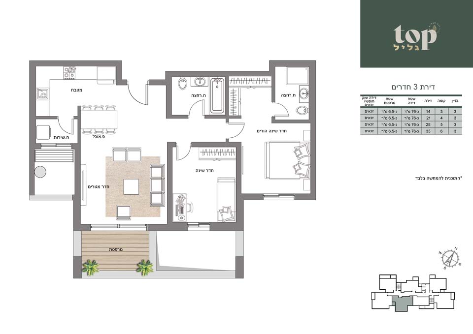
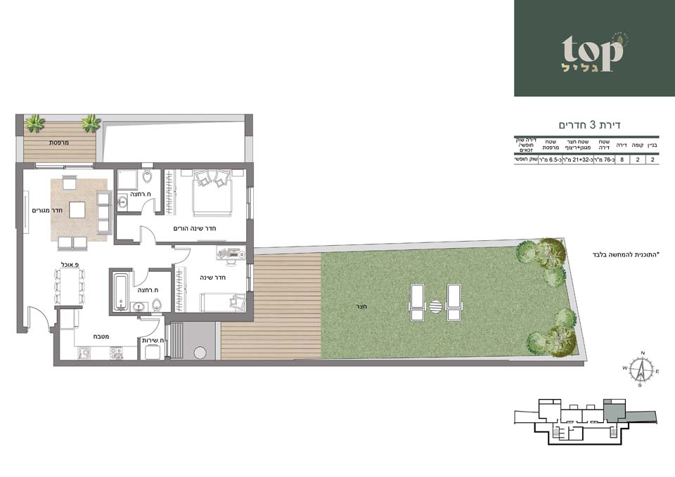
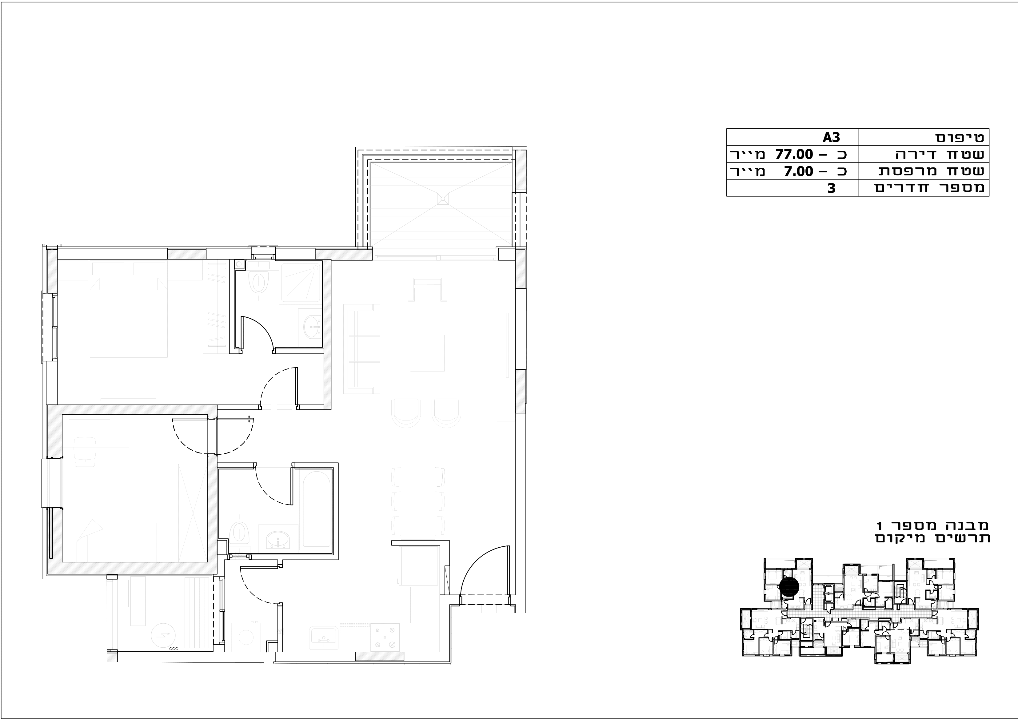
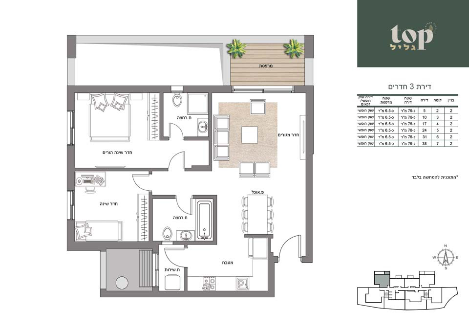
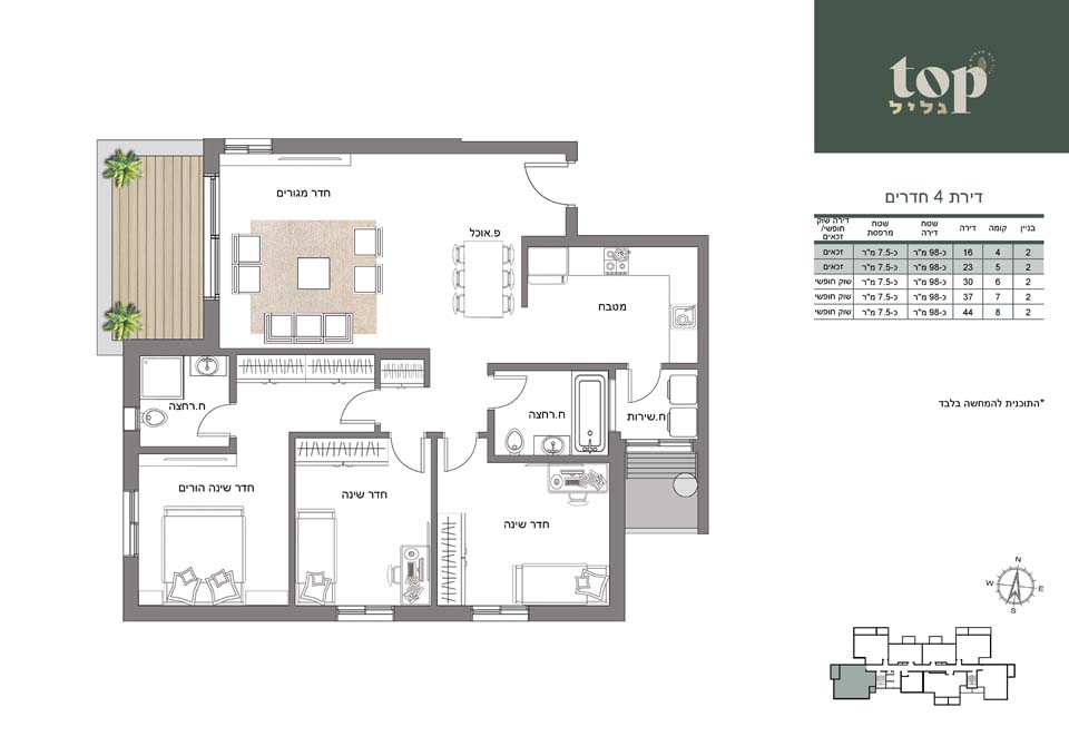
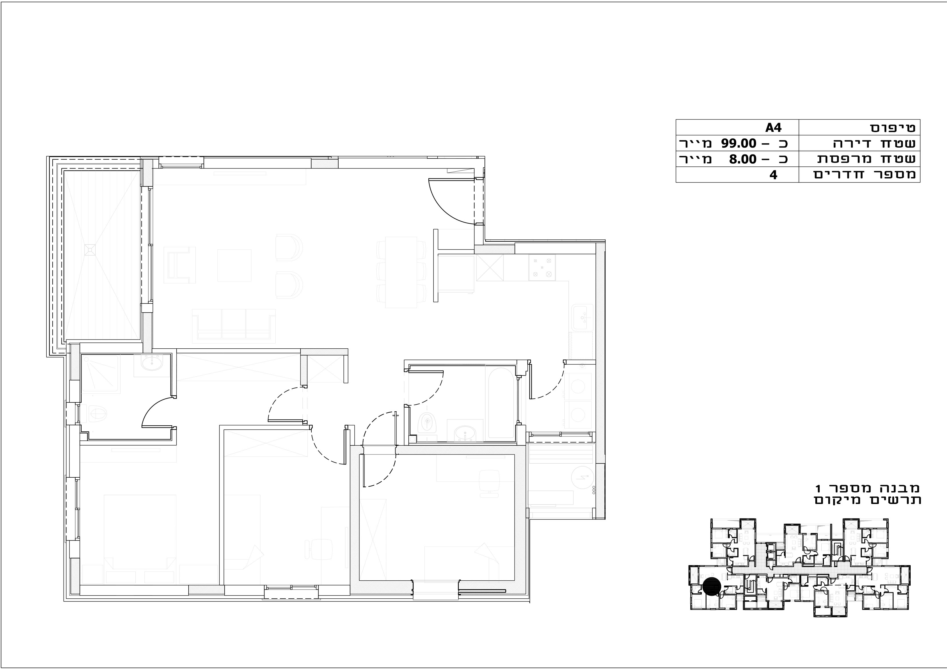
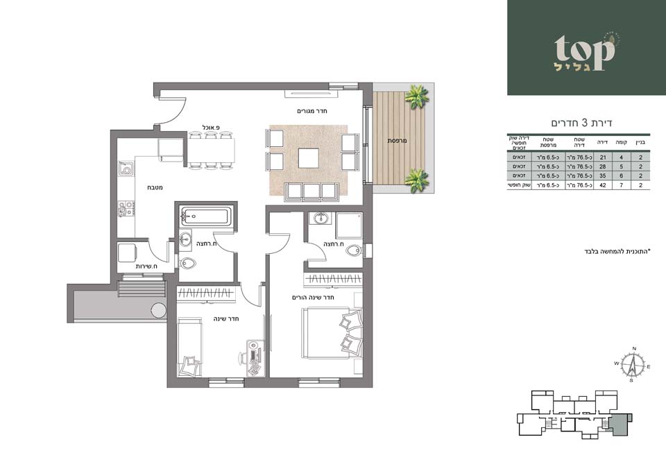
תוכניות דירה
היזמים
דיור בשכ"ד מופחת לזכאים
צרו
קשר
LIVE A LITTLE MORE
קהילה, סביבה והרבה מעבר לדירה - הכירו את פרויקט TOP גליל, המגיע לנוף הגליל בעקבות הצלחת פרויקט הרובע בחיפה
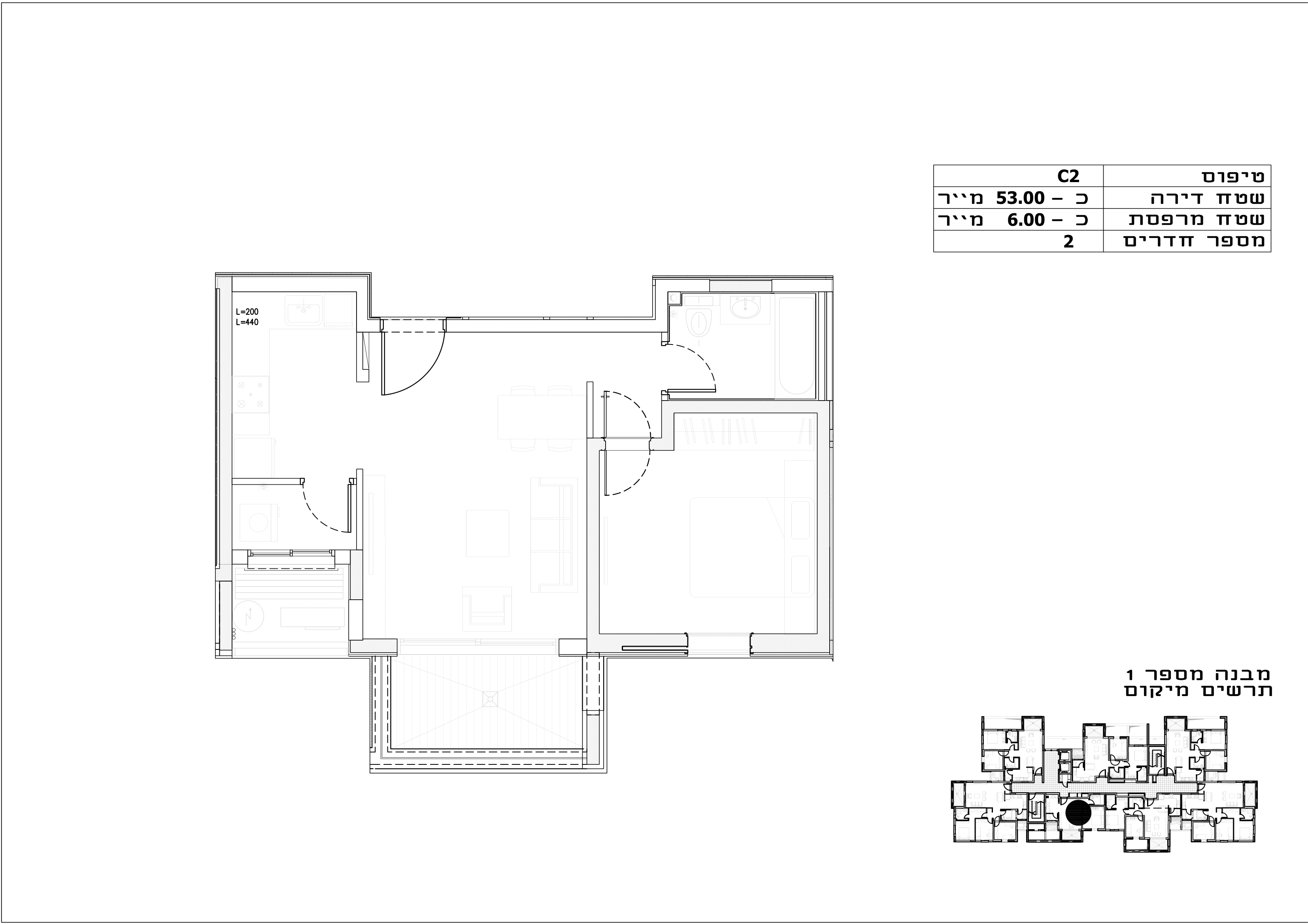
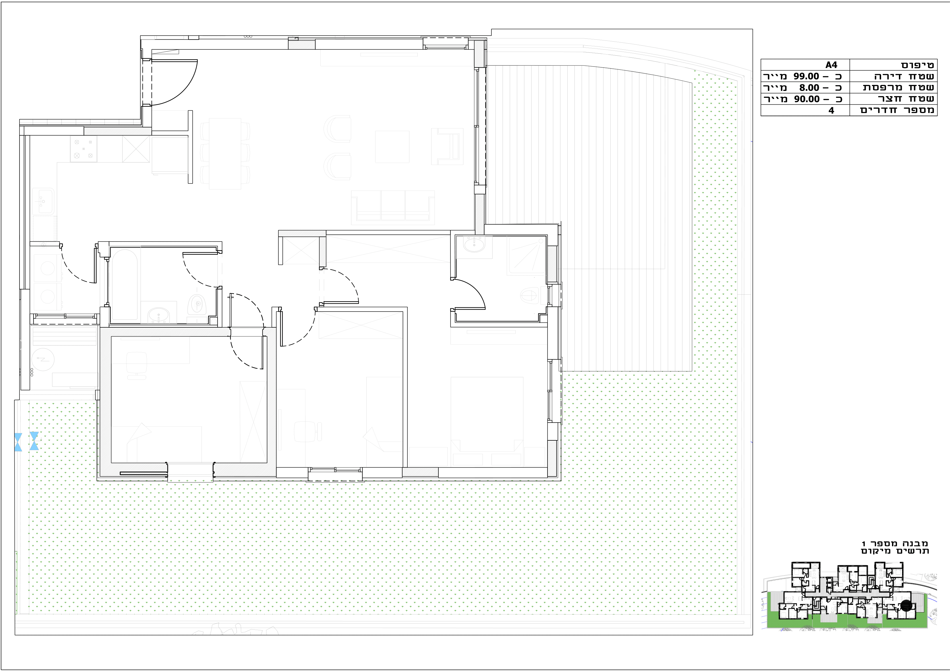
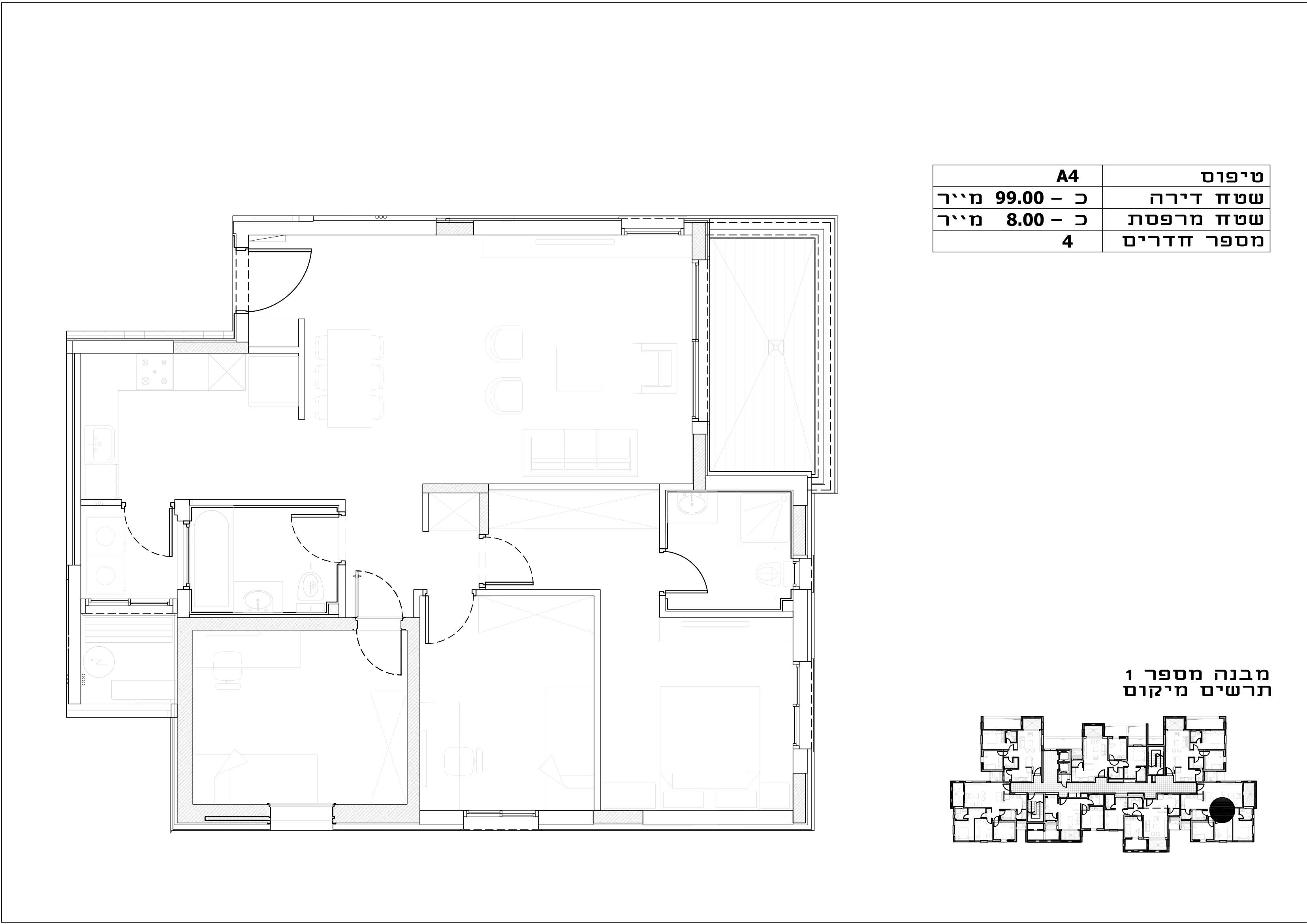
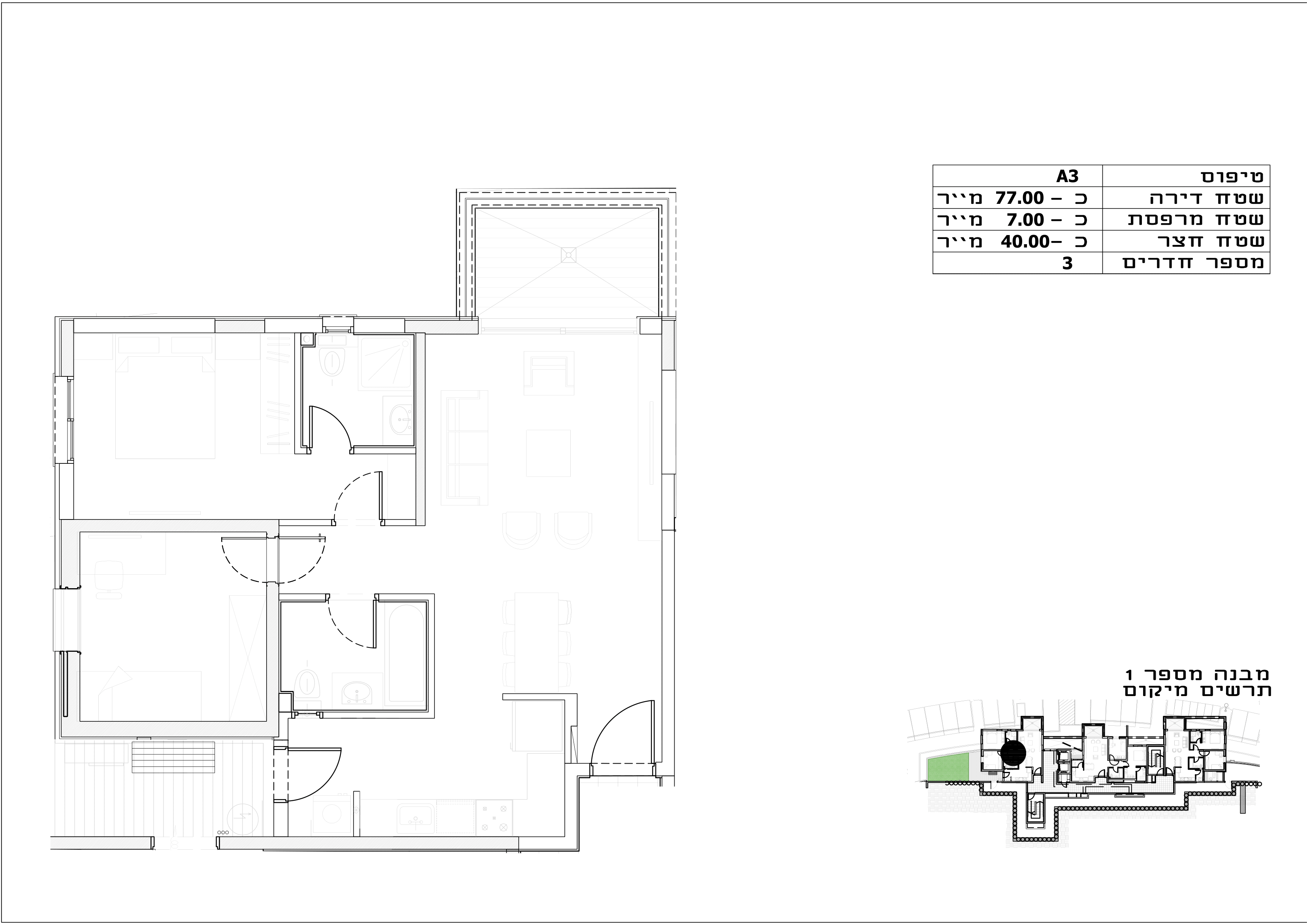
בניין: 1
בניין: 1
בניין: 1
בניין: 1
בניין: 1
בניין: 1
בניין: 1
בניין: 1
בניין: 1
בניין: 1
בניין: 1
בניין: 1
בניין:2
בניין:2
בניין:2
בניין:2
בניין:2
בניין:2
בניין:2
בניין:2
בניין:2
בניין:2
בניין:2
בניין:2
בניין:2
בניין:2
בניין:2
בניין:2
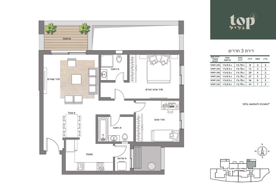
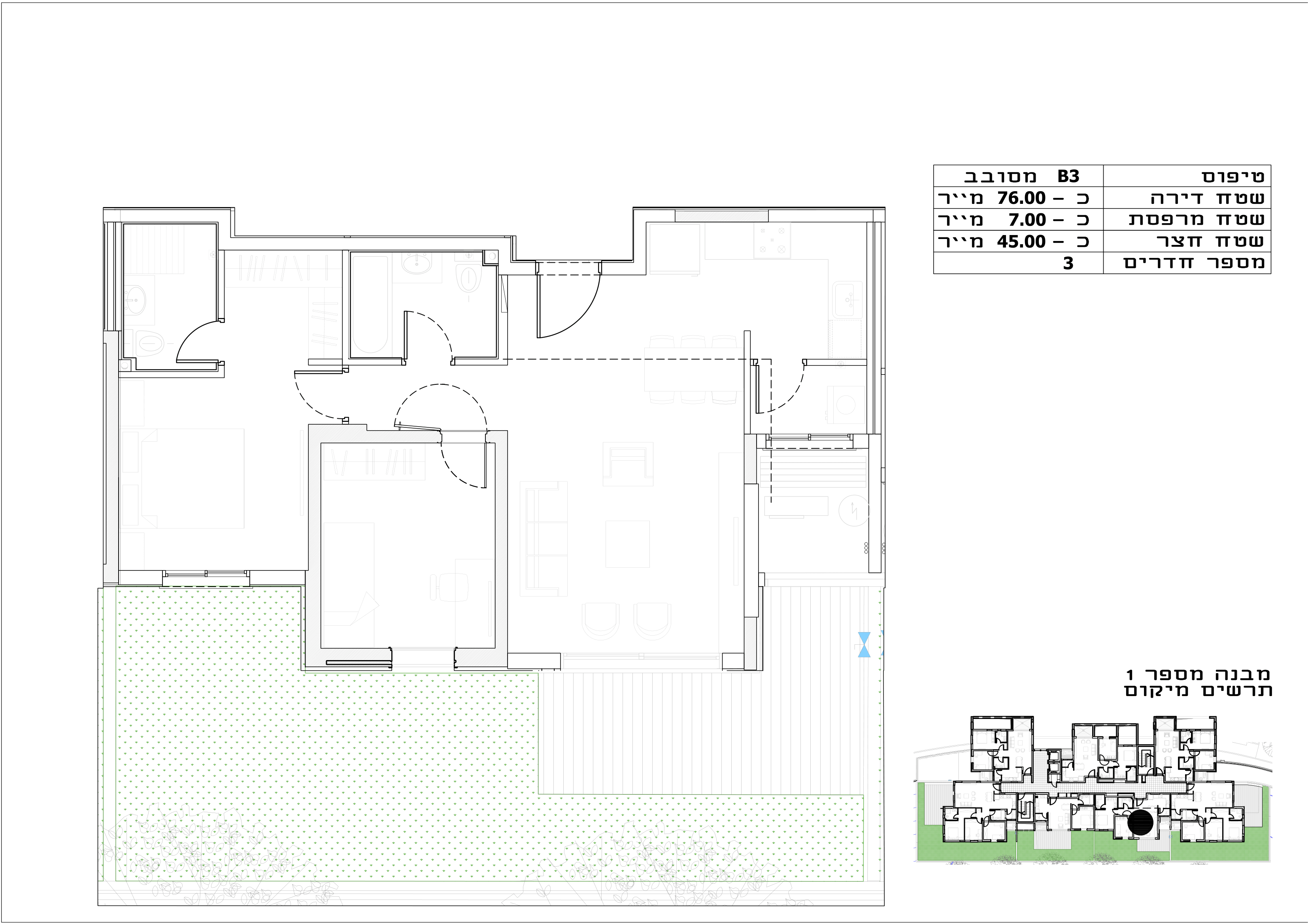
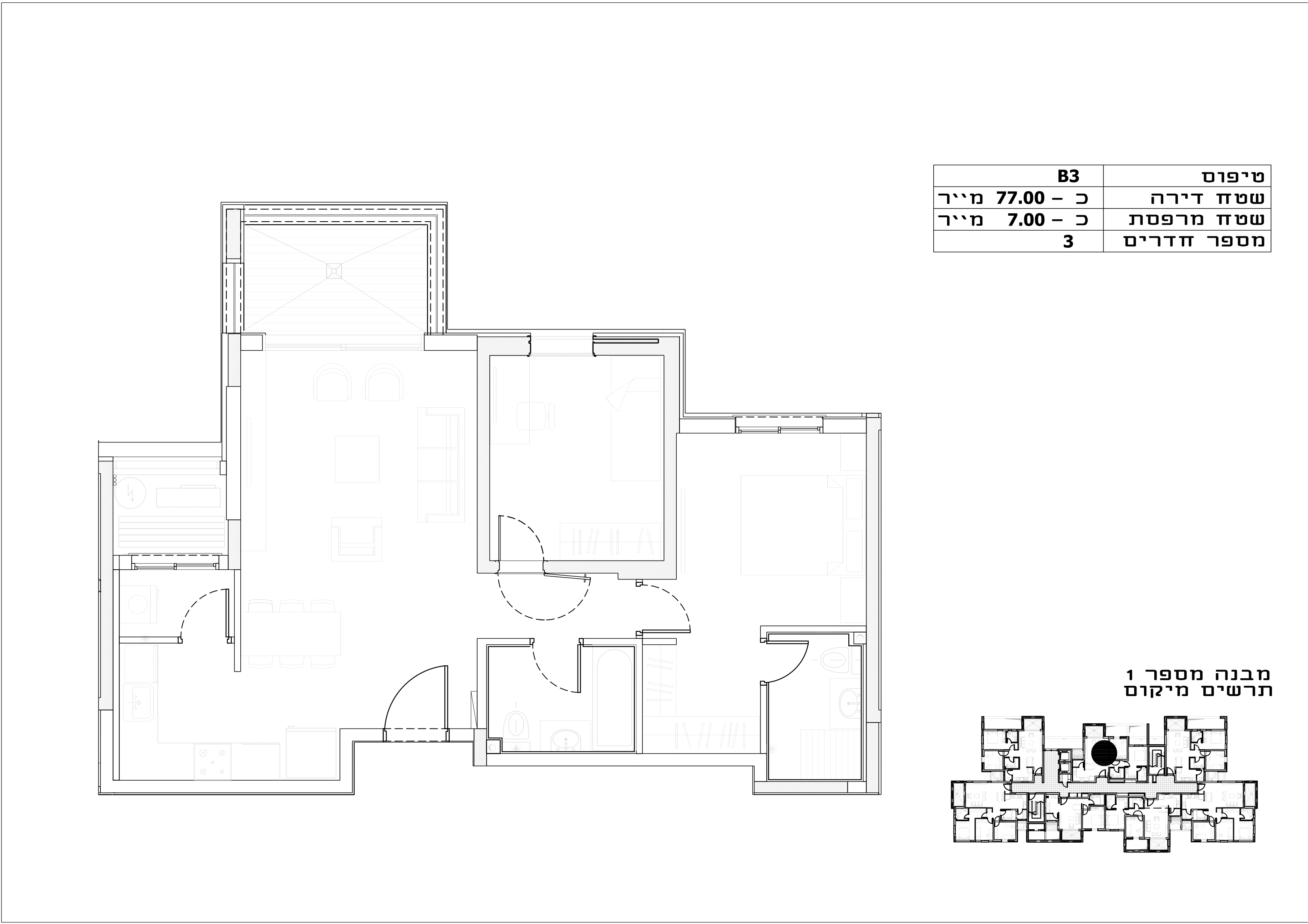
בניין:3
בניין:3
בניין:3
בניין:3
בניין:3
בניין:3
בניין:3
בניין:3
בניין:3
בניין:3
בניין:3
בניין:3
בניין:3
בניין:3
בניין:3
בניין:3
בניין:3
בניין: 4/5
4 חדרים | קומות: 2-4
בניין: 4/5
4 חדרים | קומות: 2-4
בניין: 4/5
3 חדרים | קומות: 1-4
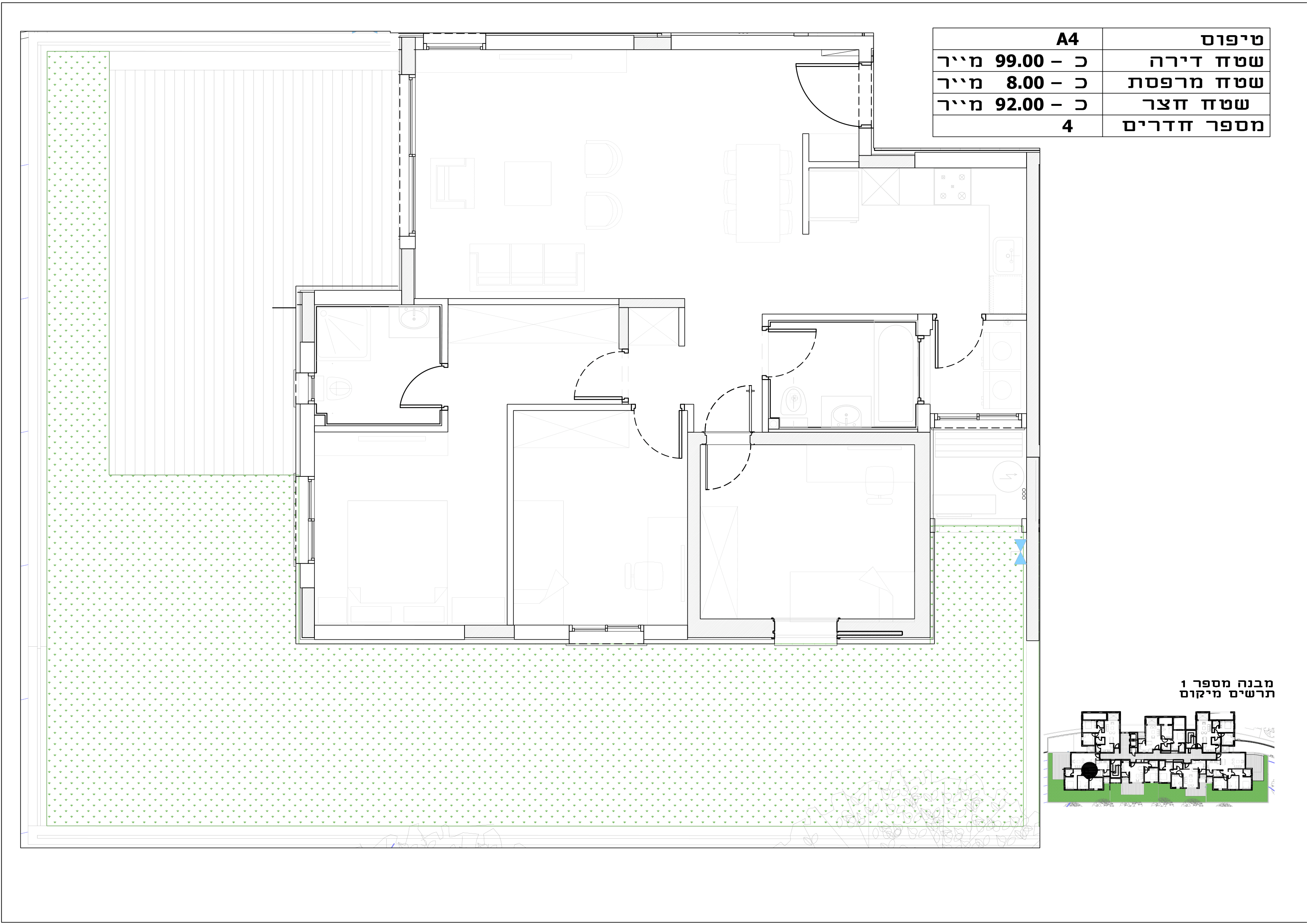
בניין: 4
גן 4 חדרים | קומות: 1
בניין: 4
גן 4 חדרים | קומות: 1
בניין: 4/5
3 חדרים | קומות: 1-4
בניין: 4/5
דירת גן | קומות: 0
בניין: 4/5
פנטהאוס | קומות: 5
Developed By Digital-Cloud